Skip To Content

0 Ridgeway Drive

National City, CA 91950
  • $71,000
  • STATUS: Pending
  • ON SITE: 353 Days
  • ID#: PTP2501261
Pending
UPDATED: 53 min ago
$71,000
  • 0
    BEDS
  • 0.17
    ACRES
  • 0
    BATHS
  • 0
    1/2 BATHS
Neighborhood:
Type:
Vacant Land / Lots
County:

School Ratings & Info

Listing Agent(s): Alejandro Soto of BHGRE Clarity (619-535-8511)


Description

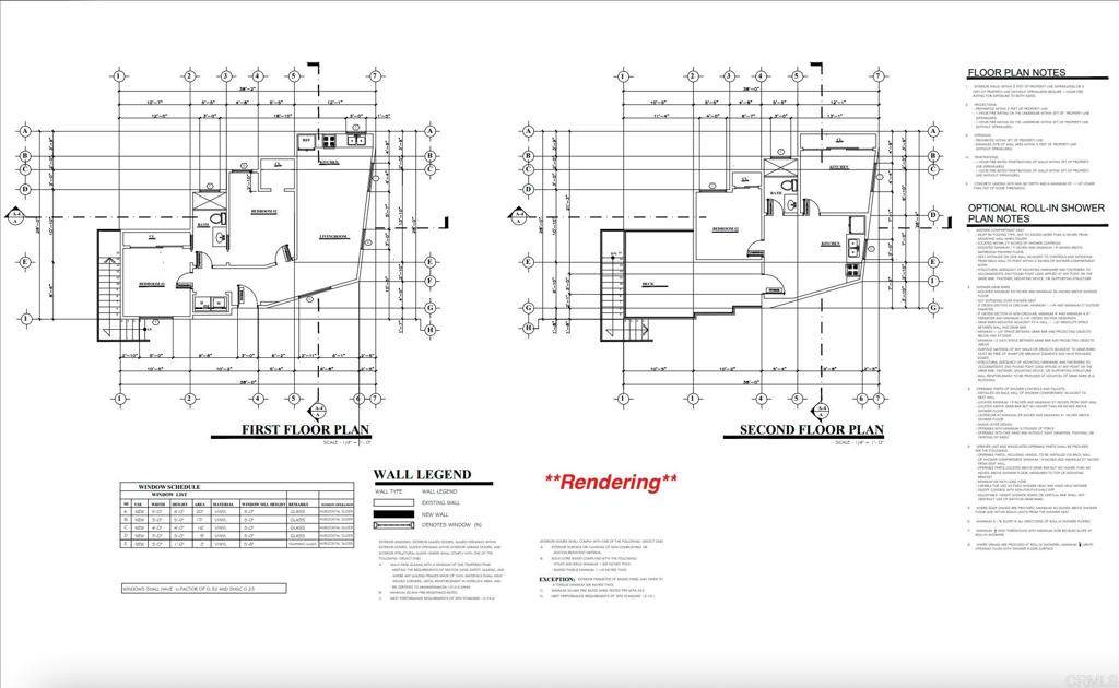
This centrally located lot in National City offers an excellent opportunity for development. Situated near Freeway 805 and Highway 54, it provides convenient access to shopping, dining, and major transportation routes. The lot is zoned UR, making it ideal for a single-family home with potential for an ADU (Accessory Dwelling Unit). The current owner explored development options but has decided not to move forward. A preliminary two-story, two-unit design has been developed for this property. Dont miss this chance to build in a highly desirable, well-connected neighborhood. Buyer to verify zoning, permits, and development options with the City of National City.

Monthly Payment Calculator



Based on information from California Regional Multiple Listing Service, Inc. as of 2026-02-08T13:26:58.45. This information is for your personal, non-commercial use and may not be used for any purpose other than to identify prospective properties you may be interested in purchasing. Display of MLS data is deemed reliable but is not guaranteed accurate by the MLS or The Ramos Group | Keller Williams High Desert. Licensed in the State of California, USA.
www.carminsellshomes.com/homes/160673716
Print Image

0 Ridgeway Drive National City, CA 91950

  • Price: $71,000
  • Status: Pending
  • On Site: 353 Days
  • Updated: 53 min ago
  • ID#: PTP2501261
0
Beds
0
Baths
0
½ Baths
0.17
Acres
Neighborhood:
91950 - National City
County:
San Diego
Area:
91950 - National City
Property Description
This centrally located lot in National City offers an excellent opportunity for development. Situated near Freeway 805 and Highway 54, it provides convenient access to shopping, dining, and major transportation routes. The lot is zoned UR, making it ideal for a single-family home with potential for an ADU (Accessory Dwelling Unit). The current owner explored development options but has decided not to move forward. A preliminary two-story, two-unit design has been developed for this property. Dont miss this chance to build in a highly desirable, well-connected neighborhood. Buyer to verify zoning, permits, and development options with the City of National City.
Exterior Features

Lot Features Cul-De-Sac Parking Total 0 Road Frontage Type City Street Road Surface Type Paved View Neighborhood View YN Yes

Property Features

Additional Parcels YN No Association Fee 0 Association YN No Community Features Urban Land Lease YN No Listing Agreement Exclusive Right To Sell Listing Service Full Service Listing Terms Cash1031 ExchangeVA Loan Senior Community YN No Special Listing Conditions Standard Utilities Water Not Available Water Source None Zoning RU Zoning Description Urban Residential. Family Residentialconditional institutional residential care uses and civic uses allowed by Use Permit. Applied to areas where adequate levels of public services are available.



Based on information from California Regional Multiple Listing Service, Inc. as of 2026-02-08T13:26:58.45. This information is for your personal, non-commercial use and may not be used for any purpose other than to identify prospective properties you may be interested in purchasing. Display of MLS data is deemed reliable but is not guaranteed accurate by the MLS or The Ramos Group | Keller Williams High Desert. Licensed in the State of California, USA.
 
https://bt-photos.global.ssl.fastly.net/socal/orig_boomver_1_373960301-2.jpg https://bt-photos.global.ssl.fastly.net/socal/orig_boomver_1_373960301-2.jpg https://bt-photos.global.ssl.fastly.net/socal/orig_boomver_1_373960301-2.jpg
Logo
The Ramos Group | Keller Williams High Desert
12530 Hesparia Rd Suite 101
Victorville CA, 92395
Listing Agent(s): Alejandro Soto of BHGRE Clarity (619-535-8511)